






物件概要
| 所在地 | 新潟県南魚沼市浦佐4633番地7 |
| 価格 | 500万円 |
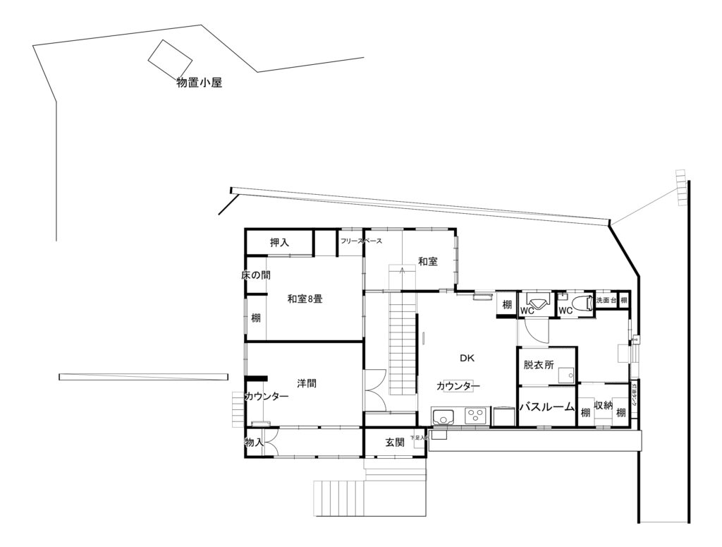
| 間取り | 6DK |
| 土地面積 | 公簿669.88㎡ (約202.63坪) |
| 建物面積(延床面積) | 186.7㎡ (約56.47坪) |
| 築年月 | 1970年08月(昭和45年8月) |
| 地目 | 宅地ほか、原野 |
| 状況 | 空き家 |
| 用途地域 | 第一種住居地域 |
| 建ぺい率・容積率 | 60%・200% |
| 交通 | JR上越新幹線・上越線「浦佐駅」徒歩14分 |
| 設備・条件 | 公共上下水道区 プロパンガス・買主に条件あり |




/







| 所在地 | 新潟県南魚沼市浦佐4633番地7 |
| 価格 | 500万円 |
| 間取り | 6DK |
| 土地面積 | 公簿669.88㎡ (約202.63坪) |
| 建物面積(延床面積) | 186.7㎡ (約56.47坪) |
| 築年月 | 1970年08月(昭和45年8月) |
| 地目 | 宅地ほか、原野 |
| 状況 | 空き家 |
| 用途地域 | 第一種住居地域 |
| 建ぺい率・容積率 | 60%・200% |
| 交通 | JR上越新幹線・上越線「浦佐駅」徒歩14分 |
| 設備・条件 | 公共上下水道区 プロパンガス・買主に条件あり |